您好,欢迎访问湖北旗达石化设备有限公司官网!
网站地图
联系我们
网站首页
企业简介
产品中心
新闻动态
典型业绩
荣誉资质
联系我们
产品
分类
阻火器系列
(阻火)呼吸阀系列
氮封装置
储罐开孔配件系列
过滤器系列
视镜系列
金属软管系列
液位计系列
消声器系列
混合器系列
排气阀系列
油品装卸鹤管系列
油罐浮动出油装置
快速接头系列
人孔系列
联系我们
公司地址:
武汉市东西湖区慈惠农场花园路8号
销售总机:
027-8538 5758
值班手机:
189 7116 3253
官方网站:
www.qidash.com
企业邮箱
qida@qidash.com
主页
>
产品中心
>
排气阀系列
>
产品详情
双口排气阀、不锈钢双口排气阀【湖北旗达】
简介:湖北旗达石化设备有限公司是一家排气阀专业生产厂家,其产品双口排气阀具有安装方便、使用寿命长、价格实惠等优点。买双口排气阀就选湖北旗达,性能优良、价格实惠、满足您的需求。
双口排气阀(
PQF-2
)
型
双口排气阀
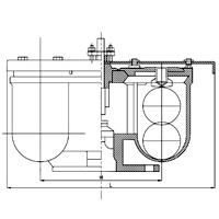
双口排气阀结构图
双口排气阀用途:
双口排气阀适用于工业介质为水的管路上,作为快速排除管道内气体的设备,以提高输送水设备的效率和保护管道不致变形破裂,是管道的优选设备。
双口排气阀特点:
1
、能够排除管道中的气体,减少阻力节约能源。
2
、当管道负压时,本产品能快速自动吸入空气防止管道破裂
3
、排气能力是普通双孔排气阀多倍。
4
、浮球托架为不锈钢。使用寿命长,安全可靠。
双口排气阀技术参数:
介质:清水
温度:常温
壳体强度试验压力:1.5MPa,无损坏
浮球密封试验压力:0.05-0.1MPa无漏水
阀体材料:灰铸铁HT200
浮球托架:不锈钢
Copyright © 2020-2021 湖北旗达石化设备有限公司 版权所有 备案号:
鄂ICP备 19021708号
鄂公网安备 42010402000653号
回到顶部