带吸入接管呼吸阀、带吸入接管阻火呼吸阀【湖北旗达】
简介:带吸入接管阻火呼吸阀是安装在固定顶罐上的通风装置,起减少油品蒸发损耗,控制储罐压力及阻止外界火焰传入的作用。带吸入接管呼吸阀具有通风量大,泄漏量小,耐腐蚀等特点,并有静电接地线,使呼吸阀与罐体保持电位。目前我公司在带吸入接管呼吸阀容易产生静电的部位,做了技术改进添加了聚四氟乙烯垫片所以不需要接静电排放装置。
带吸入接管呼吸阀(HXF-III)型
带吸入接管阻火呼吸阀(HXF-IIIZ)型

带吸入接管(阻火)呼吸阀 |

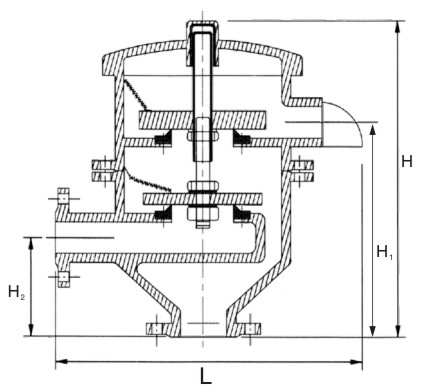
带吸入接管呼吸阀结构图 |

带吸入接管阻火呼吸阀结构图 |
带吸入接管呼吸阀参数材料表:
|
壳体材质 |
碳钢、不锈钢、衬里 |
|
阻火芯件材质 |
不锈钢防爆阻火波纹板 |
|
密封件材质 |
丁腈橡胶、聚四氟乙烯 |
|
防爆级别 |
BS5501:IIA、IIB、IIC |
|
工作温度(℃) |
-30~+60 |
|
操作压力(Pa) |
-295pa~+9800pa (-30mmH2O~+1000mmH2O) |
带吸入接管呼吸阀表格计算单位:(mm)
|
DN |
40 |
50 |
80 |
100 |
150 |
200 |
250 |
|
SIZE |
11/2” |
2” |
3” |
4” |
6” |
8” |
10” |
|
H1 |
220 |
235 |
275 |
320 |
375 |
440 |
495 |
|
H2 |
95 |
120 |
135 |
145 |
155 |
165 |
190 |
|
H |
330 |
350 |
410 |
450 |
585 |
695 |
770 |
|
L |
245 |
255 |
350 |
365 |
490 |
550 |
590 |
订货须知:
1、我厂承接各种非标压力带吸入接管呼吸阀;
2、订货时请注明口径、材质、压力及数量等。